91 Olliviers

91 Olliviers Road development consists of four stunning, architecturally designed townhouses located in the up and coming area of Phillipstown, Christchurch. These fully brick-clad homes are built with high-quality materials, ensuring durability and timeless style. Each townhouse features three spacious bedrooms, offering ample space for families or individuals who appreciate comfort and privacy.

The homes are designed with modern, open-plan living in mind, providing seamless spaces for dining, lounging, and entertaining. With 2.5 bathrooms, these homes offer a combination of convenience and luxury. The master bedroom includes an ensuite, while the additional bathrooms are beautifully designed to match the high standards throughout the home.

Bedroom

3

Lounge

1

Bathroom

2

Toilet

3

Parking

1

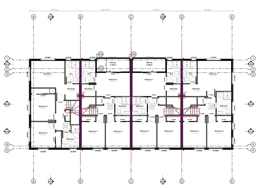
Floor Plans & Renders

2D Ground Floor Plan

2D First Floor Plan

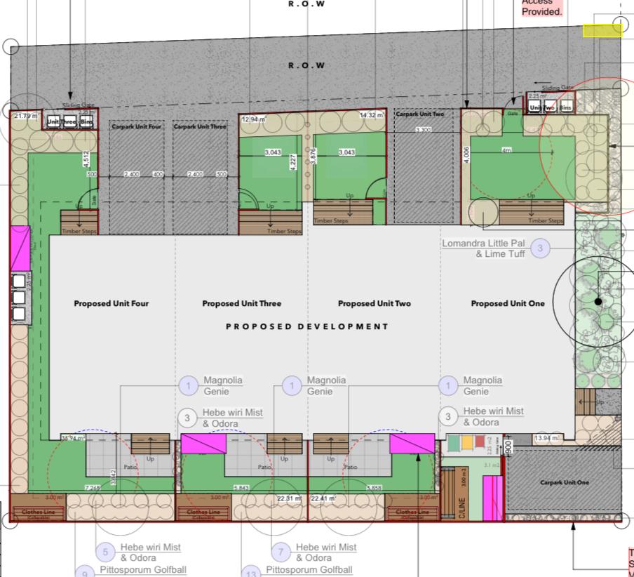
Landscape Plan

Unit 1 Ground Floor

Unit 2,3 Ground Floor

Unit 1,2,3 First Floor

Unit 4 Ground Floor

Unit 4 First Floor

Amenities

Parking Space
Lawn
Insulated Wall

Location

Te Kaha Stadium, City Centre 1.8 KM
School 1.4 KM
Chch Hospital 4.1 KM
Chch Airport 13 KM
Eastgate Shopping Mall 1.4 KM